ПЕРЕПЛАНИРОВКА.RU®
ул. Лермонтова, д. 24, оф. 9
8 (4212) 42-83-29

Кейс: перепланировка 2-комнатной квартиры ул. Сысоева, 14 корп. 2

2026-02-28   

Проект перепланировки и переустройства квартиры

Объект: двухкомнатная квартира, расположенная на 20 этаже 24-этажного жилого дома в Индустриальном районе города Хабаровска. Задачи: оптимизировать пространство квартиры, разделить просторную комнату на два отдельных жилых помещения, организовать удобную систему хранения за счёт выделения гардеробной из площади коридора, а также объединить новообразованную комнату с кухней. Выполненные работы: подготовка архитектурно-планировочных решений, разработка проекта перепланировки квартиры.

Исходные данные

Год постройки дома — 2025 г.
Наружные стены — монолитные железобетонные.
Перегородки — монолитные железобетонные.
Перекрытие — монолитное железобетонное.
Этаж квартиры — 20, число этажей в доме — 24.
Общая площадь до перепланировки — 60,8 м².
Жилая площадь до перепланировки — 32,2 м².
Высота помещений — 2,76 м.
Состав квартиры до перепланировки: 2 жилые комнаты, коридор, кухня, ванная, санузел.

Исходный план квартиры

Что мы сделали

1. Провели анализ планировки квартиры и разработали планировочное решение с учётом технического состояния конструкций, требований нормативных документов и пожеланий заказчиков.

2. Разработали проект перепланировки и переустройства квартиры.

Проектное предложение предусматривает:
— демонтаж существующей ненесущей перегородки между кухней и жилой комнатой;
— возведение перегородок из ГВЛ (в коридоре и между жилыми комнатами);
— устройство дверных проёмов и установку дверных блоков;
— монтаж гидроизоляции полов;
— переустройство (установка раковин, унитаза, ванны).

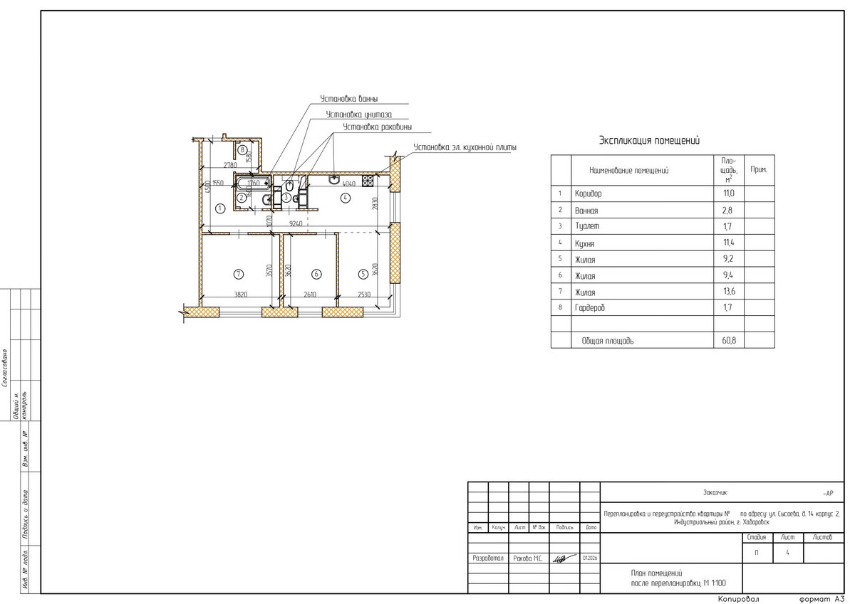
План-схема перепланировки План помещений после перепланировки

Преимущества архитектурно-планировочных решений:

  • Благодаря наличию двух окон в большой жилой комнате площадью 18,6 м² удалось эффективно произвести зонирование пространства, разделив его на два полноценных жилых помещения площадью 9,2 м² и 9,4 м², что полностью соответствует санитарным нормам по минимальной площади жилых помещений.
  • Устройство гардеробной площадью 1,7 м² освобождает коридор. Вещи находятся в специально отведённом месте, что улучшает визуальное восприятие квартиры.
  • Объединение новообразованной жилой комнаты с кухней создаёт просторное многофункциональное пространство. Формируется удобная зона для семейных посиделок и приёма гостей.

3. Обеспечили соблюдение норм СНиП по противопожарной безопасности и требования санитарно-эпидемиологической службы.

4. Учли требования к инженерным системам в МКД:
— водоснабжение и канализация (существующие системы стояков не изменяются и не затрагиваются);
— отопление (существующая система не изменяется и не затрагивается);
— освещение от существующих окон (естественное).

5. В помещениях туалета, ванной и кухни предусмотрена гидроизоляция плит перекрытия с заходом на стены всю высоту замачивания. Работы по устройству полов, гидроизоляции и теплоизоляции необходимо выполнять в соответствии с требованиями СП 71.13330.2017 и СП 70.13330.2012.

6. Предусмотрели акт скрытых работ на гидроизоляцию полов, монтаж электропроводки и монтаж перегородок из ГВЛ. B ходе работ составление актов на скрытые работы обязательно.

7. Переустройство помещений, замена оборудования, а также монтаж электрического кабеля и подключение электрической плиты должны выполняться силами лицензированных организаций, имеющих соответствующие допуски. Подключение и прокладку сетей производить без штрабления монолитно-железобетонных стен и перегородок.

Технико-экономические показатели квартиры после перепланировки

  • Общая площадь квартиры — 60,8 м².
  • Жилая площадь квартиры — 32,2 м².
  • Состав помещений после перепланировки: 3 жилые комнаты, коридор, кухня, ванная, туалет, гардероб.

Нормативные документы

Перепланировка квартиры, расположенной по адресу: ул. Сысоева, д. 14, корп. 2, не нарушает права и законные интересы граждан, не создаёт угрозы их жизни и здоровью, выполняется без нарушения несущих конструкций элементов здания и не оказывает влияние на устойчивость конструкций МКД.

Проектная документация выполнена в соответствии с действующими нормами и правилами и предусматривает мероприятия, обеспечивающие пожарную безопасность эксплуатации здания, при соблюдении их заказчиком и подрядчиком.

Раздел «Объёмно-планировочные и архитектурные решения» разработан на основании требований Градостроительного кодекса Российской Федерации. Содержание раздела соответствует постановлению Правительства Российской Федерации от 16 февраля 2008 года № 87 «О составе разделов проектной документации и требованиях к их содержанию» (с изменениями на 27 мая 2022 года).

Проектные решения по обеспечению вышеперечисленных параметров приняты в соответствии с действующими нормативными документами:

  • СанПиН 2.1.3684-21 «Санитарно-эпидемиологические требования к содержанию территорий городских и сельских поселений, к водным объектам, питьевой воде и питьевому водоснабжению, атмосферному воздуху, почвам, жилым помещениям, эксплуатации производственных, общественных помещений, организации и проведению санитарно-противоэпидемических (профилактических) мероприятий».
  • СП 54.13330.2022 «Здания жилые многоквартирные».
  • Федеральный закон № 123-ФЗ «Технический регламент о требованиях пожарной безопасности».
Кисляков Альберт Анатольевич
Автор: Кисляков Альберт Анатольевич,
директор проектной компании «Алкис»

заказать проект перепланировки
Нужен проект?

Разработаем проект перепланировки для квартиры в любом городе РФ с учётом норм и местных требований согласования.

Опишите задачу и оставьте контакты, наш специалист свяжется с вами в течение рабочего дня.

чек-лист
Чек‑лист: от замысла до ЕГРН

Все шаги оформления и согласования перепланировки квартиры в чек-листе: от проверки идей и документов до обращения в Росреестр и получения выписки из ЕГРН.

Открыть