ПЕРЕПЛАНИРОВКА.RU®
ул. Лермонтова, д. 24, оф. 9
8 (4212) 42-83-29

Кейс: перепланировка 1-комнатной квартиры ул. 65-летия Победы, д. 1/15

2026-04-10   

Проект перепланировки и переустройства квартиры

Объект: однокомнатная квартира, расположенная на 1 этаже кирпичного дома в Индустриальном районе города Хабаровска. Задачи: формирование более просторного и функционального жилого пространства за счёт объединения кухни и комнаты при сохранении приватности отдельных зон и улучшении общей эргономики планировки. Выполненные работы: подготовка архитектурно-планировочных решений, разработка проекта перепланировки и переустройства квартиры.

Исходные данные

Год постройки дома — 2022 г.
Наружные стены — кирпичные, утеплённые, облицованные кирпичом.
Перегородки — кирпичные, ПГП.
Перекрытие — железобетонные плиты.
Этаж квартиры — 1, число этажей в доме — 9.
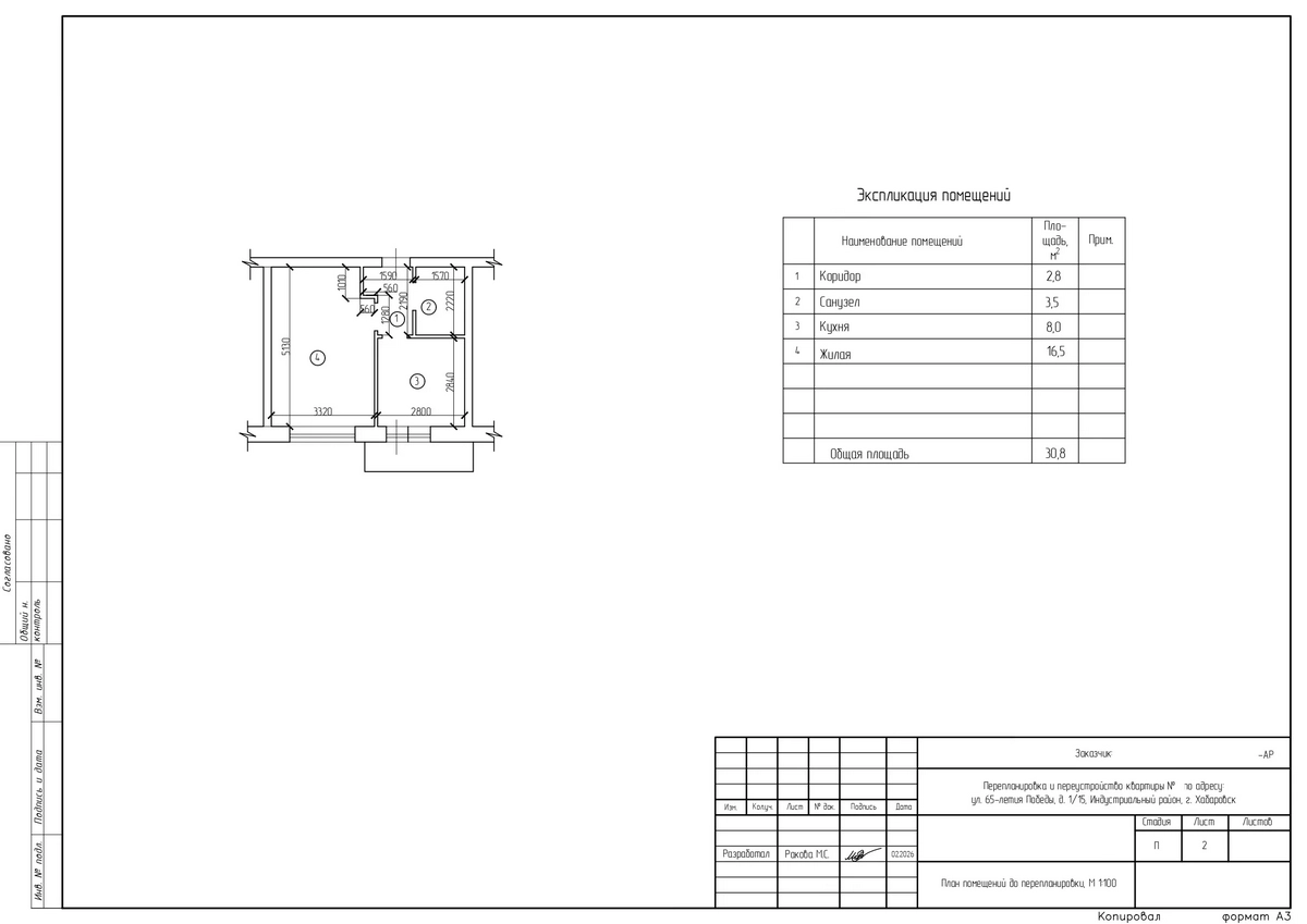
Общая площадь до перепланировки — 30,8 м².
Жилая площадь до перепланировки — 16,5 м².
Высота помещений — 2,70 м.
Состав квартиры до перепланировки: 1 жилая комната, коридор, кухня, санузел.

Исходный план квартиры

Что мы сделали

1. По результатам анализа планировки квартиры сформировали планировочное решение с учётом технического состояния строительных конструкций, нормативных требований и пожеланий заказчиков.

2. Разработали проект перепланировки и переустройства квартиры.

Проектное предложение предусматривает:
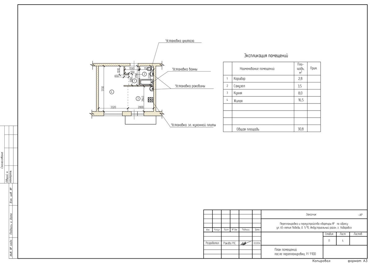
— демонтаж существующей ненесущей перегородки из ПГП между комнатой и кухней;
— возведение новой перегородки из ПГП;
— установку дверного блока;
— закладку дверного проёма ПГП;
— монтаж гидроизоляции полов;
— переустройство (установка раковины, унитаза, ванны и электрической кухонной плиты).

План-схема перепланировки План помещений после перепланировки

Преимущества архитектурно-планировочных решений:

  • Демонтаж перегородки позволил объединить кухню и комнату в единую зону — более просторную, светлую и удобную для повседневного использования. Появилась возможность организовать современную кухню-гостиную с зоной отдыха.
  • Исключение прямого входа в кухню из коридора повысило комфорт: пространство стало более уединённым, лучше изолированным от шума и визуально защищённым.
  • Планировка стала логичнее: сокращены лишние маршруты, появилось гибкое зонирование с помощью мебели, улучшилось распределение воздуха и общая эргономика.
  • Открытая структура делает интерьер более гармоничным, облегчает восприятие пространства и даёт больше свободы в дизайне.
  • Повышается удобство проживания, эффективнее используется площадь и растёт привлекательность квартиры с точки зрения рынка.

3. Обеспечили соблюдение норм СНиП по противопожарной безопасности и требования санитарно-эпидемиологической службы.

4. Учли требования к инженерным системам в МКД:
— водоснабжение и канализация (существующие системы стояков не изменяются и не затрагиваются);
— отопление (существующая система не изменяется и не затрагивается);
— освещение от существующих окон (естественное).

5. В помещениях санузла и кухни предусмотрена гидроизоляция плит перекрытия с заходом на стены всю высоту замачивания. Работы по устройству полов, гидроизоляции и теплоизоляции необходимо выполнять в соответствии с требованиями СП 71.13330.2017 и СП 70.13330.2012.

6. Предусмотрели акт скрытых работ на гидроизоляцию полов, монтаж электропроводки и монтаж перегородки из ПГП. B ходе работ составление актов на скрытые работы обязательно.

7. Переустройство помещений, замена оборудования, а также подключение электрической плиты должны выполняться силами лицензированных организаций, имеющих соответствующие допуски.

Технико-экономические показатели квартиры после перепланировки

  • Общая площадь квартиры — 30,8 м².
  • Жилая площадь квартиры — 16,5 м².
  • Состав помещений после перепланировки: 1 жилая комната, коридор, кухня, санузел.

Нормативные документы

Перепланировка однокомнатной квартиры, расположенной по адресу: ул. 65-летия Победы, д. 1/15, не нарушает права и законные интересы граждан, не создаёт угрозы их жизни и здоровью, выполняется без нарушения несущих конструкций элементов здания и не оказывает влияние на устойчивость конструкций МКД.

Проектная документация выполнена в соответствии с действующими нормами и правилами и предусматривает мероприятия, обеспечивающие пожарную безопасность эксплуатации здания, при соблюдении их заказчиком и подрядчиком.

Раздел «Объёмно-планировочные и архитектурные решения» разработан на основании требований Градостроительного кодекса Российской Федерации. Содержание раздела соответствует постановлению Правительства Российской Федерации от 16 февраля 2008 года № 87 «О составе разделов проектной документации и требованиях к их содержанию» (с изменениями на 27 мая 2022 года).

Проектные решения по обеспечению вышеперечисленных параметров приняты в соответствии с действующими нормативными документами:

  • СанПиН 2.1.3684-21 «Санитарно-эпидемиологические требования к содержанию территорий городских и сельских поселений, к водным объектам, питьевой воде и питьевому водоснабжению, атмосферному воздуху, почвам, жилым помещениям, эксплуатации производственных, общественных помещений, организации и проведению санитарно-противоэпидемических (профилактических) мероприятий».
  • СП 54.13330.2022 «Здания жилые многоквартирные».
  • Федеральный закон № 123-ФЗ «Технический регламент о требованиях пожарной безопасности».
Кисляков Альберт Анатольевич
Автор: Кисляков Альберт Анатольевич,
директор проектной компании «Алкис»

заказать проект перепланировки
Нужен проект?

Разработаем проект перепланировки для квартиры в любом городе РФ с учётом норм и местных требований согласования.

Опишите задачу и оставьте контакты, наш специалист свяжется с вами в течение рабочего дня.

чек-лист
Чек‑лист: от замысла до ЕГРН

Все шаги оформления и согласования перепланировки квартиры в чек-листе: от проверки идей и документов до обращения в Росреестр и получения выписки из ЕГРН.

Открыть