Проект перепланировки и переустройство квартиры
Объект: двухкомнатная квартира в новостройке на 4‑м этаже жилого дома (ул. Льва Толстого, Кировский район, Хабаровск). В рамках проекта выполнены: эскизное проектирование, разработка планировочных решений, а также подготовка документации по перепланировке и переустройству жилого помещения.
Исходные данные
Год постройки дома — 2020 г.
Наружные стены — монолитные с утеплителем.
Перекрытие — монолитное, ж/б.
Перегородки — гипсовые пазогребневые плиты, туфоблоки.
Этаж квартиры — 4, число этажей в доме — 9-12-15.
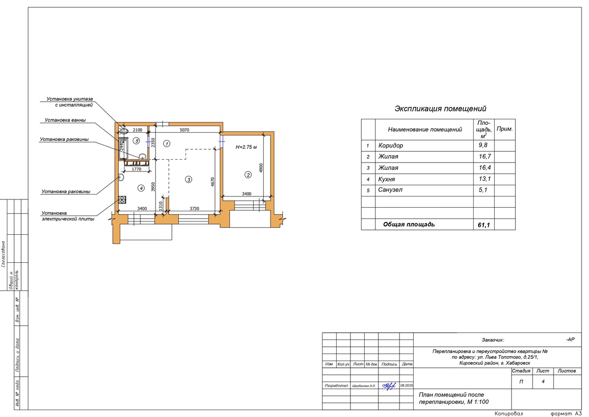
Общая площадь квартиры до перепланировки — 61,1 м².
Жилая площадь квартиры до перепланировки — 33,1 м².
Высота помещений — 2,75 м.
Состав помещений до перепланировки — 2 жилые комнаты, коридор, кухня, санузел.
Что мы сделали
1. Совместно с собственницей разработали эскиз новой планировки, опираясь на план помещений квартиры, пожелания владелицы, документацию застройщика и технические ограничения по перепланировке.
2. Разработали проект перепланировки и переустройства квартиры.
Проектное предложение предусматривает:
— демонтаж внутренних ненесущих перегородок между кухней и комнатой, а также между коридором и комнатой;
— возведение новой перегородки из ГВЛ в санузле;
— установку дверных блоков;
— устройство наливных полов с гидроизоляцией в помещениях санузла и кухни;
— переустройство (установка ванны, раковин, унитаза и электрической плиты).
Преимущества архитектурно-планировочных решений:
- Объединение кухни с жилой зоной позволило создать открытую планировку, что визуально увеличило пространство и сделало его более воздушным и просторным.
- Устранение перегородки между коридором и комнатой обеспечило более удобное перемещение по квартире и улучшило общую эргономику жилого пространства.
- Перегородка из ГВЛ между унитазом и ванной позволяет визуально разделить функциональные зоны в совмещённом санузле, повышая комфорт использования санузла.
- Интеграция кухонной и жилой зон дала возможность организовать единое многофункциональное пространство с возможностью зонирования под различные нужды семьи.
- Удаление лишних перегородок способствовало лучшему распространению естественного света и улучшению вентиляции во всей жилой зоне.
- Объединение пространств позволило создать современный интерьер, соответствующий актуальным тенденциям в дизайне жилых помещений.
- Оптимизация планировки повысила функциональность квартиры и создала комфортные условия для совместного времяпрепровождения семьи.
3. Обеспечили соблюдение норм СНиП по противопожарной безопасности и требования санитарно-эпидемиологической службы.
4. Учли требования к инженерным системам в МКД:
— водоснабжение и канализация (существующие системы стояков не изменяются и не затрагиваются);
— отопление (существующая система не изменяется и не затрагивается);
— освещение от существующих окон (естественное).
5. В помещениях санузла и кухни предусмотрена гидроляция плит перекрытия с заходом на стены всю высоту замачивания. Работы по устройству полов, гидроизоляции и теплоизоляции необходимо выполнять в соответствии с требованиями СП 71.13330.2017 и СП 70.13330.2012.
6. Предусмотрели акты освидетельствования скрытых работ на монтаж скрытой электропроводки, перегородок из ГВЛ, а также на гидроизоляцию полов.
7. В рамках проекта предусмотрено подключение электрической плиты к выделенному застройщиком отводу кабеля в установленной точке. Все работы выполняются специалистами, имеющими необходимые допуски, с последующим предъявлением результата представителю управляющей компании и оформлением акта выполненных работ.
Технико-экономические показатели квартиры после перепланировки
- Общая площадь квартиры — 61,1 м².
- Жилая площадь квартиры — 33,1 м².
- Состав помещений после перепланировки — 2 жилые комнаты, коридор, санузел, кухня.
Нормативные документы
Перепланировка квартиры, расположенной по адресу: ул. Льва Толстого, д. 25/1 не нарушает права и законные интересы граждан, не создаёт угрозы их жизни и здоровью, выполняется без нарушения несущих конструкций элементов здания и не оказывает влияние на устойчивость конструкций МКД.
Проектная документация выполнена в соответствии с действующими нормами и правилами и предусматривает мероприятия, обеспечивающие пожарную безопасность эксплуатации здания, при соблюдении их заказчиком и подрядчиком.
Раздел «Объёмно-планировочные и архитектурные решения» разработан на основании требований Градостроительного кодекса Российской Федерации. Содержание раздела соответствует постановлению Правительства Российской Федерации от 16 февраля 2008 года № 87 «О составе разделов проектной документации и требованиях к их содержанию» (с изменениями на 27 мая 2022 года).
Проектные решения по обеспечению вышеперечисленных параметров приняты в соответствии с действующими нормативными документами:
- СанПиН 2.1.3684-21 «Санитарно-эпидемиологические требования к содержанию территорий городских и сельских поселений, к водным объектам, питьевой воде и питьевому водоснабжению, атмосферному воздуху, почвам, жилым помещениям, эксплуатации производственных, общественных помещений, организации и проведению санитарно-противоэпидемических (профилактических) мероприятий».
- СП 54.13330.2022 «Здания жилые многоквартирные».
- Федеральный закон № 123-ФЗ «Технический регламент о требованиях пожарной безопасности».
