Проект перепланировки и переустройство квартиры
Объект: 3-комнатная новостройка, расположенная на 11 этаже 25-этажного монолитного жилого дома 2021 года постройки по ул. ул. Карла Маркса в Железнодорожном районе Хабаровска. Выполненные работы: разработка архитектурно-планировочных решений, подготовка проекта перепланировки и переустройства квартиры.
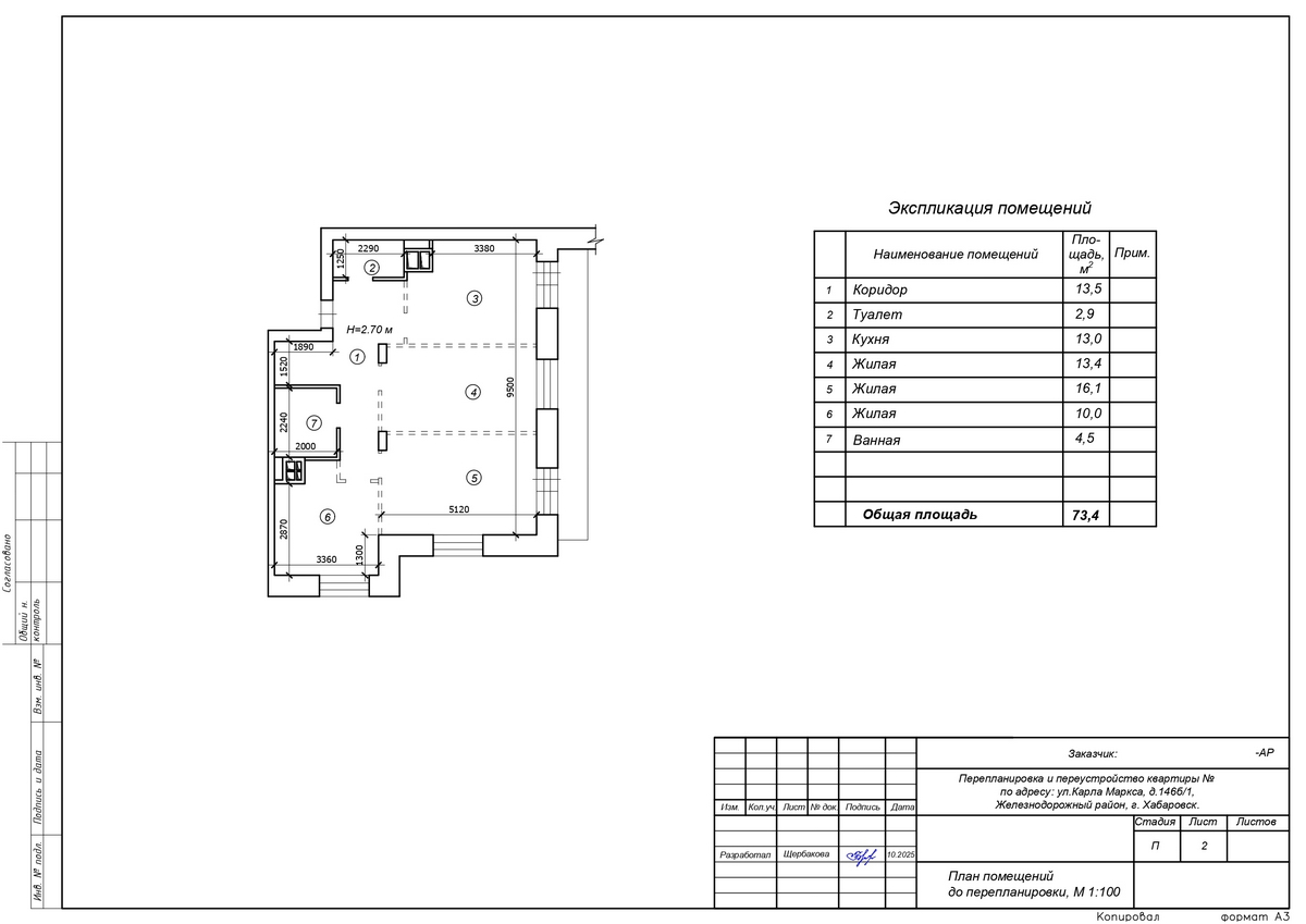
Исходные данные
Год постройки дома — 2021 г.
Наружные стены — монолитные железобетонные, кирпичные.
Перекрытие — монолитное железобетонное.
Этаж квартиры — 11, число этажей в доме — 25.
Общая площадь квартиры до перепланировки — 73,4 м².
Жилая площадь квартиры до перепланировки — 39,5 м².
Высота помещений — 2,70 м.
Состав помещений до перепланировки — 3 жилые комнаты, коридор, кухня, ванная, туалет.
Пространство квартиры организовано без внутренних перегородок (кроме санитарно‑технических узлов). Пунктирные линии на плане указывают предполагаемые границы помещений.
Что мы сделали
1. На первом этапе был подготовлен план всех помещений квартиры. Совместно с собственниками разработан эскиз новой планировки, учитывающий их пожелания, исходный план застройщика и технические возможности реализации изменений.
2. Разработали проект перепланировки и переустройства квартиры.
Проектное предложение предусматривает:
— возведение новых перегородок из газоблоков;
— устройство дверного проёма и установку дверного блока;
— устройство наливных полов с гидроизоляцией в помещениях санузла и кухни;
— переустройство (установка ванны, унитазов, душ-поддона, раковин и электрической плиты).
Преимущества архитектурно-планировочных решений:
- Перепланировка трёхкомнатной квартиры в новостройке позволила превратить «коробку без стен» в продуманное, современное пространство. Главный ход — объединение кухни и гостиной. Отказ от перегородки раскрыл квартиру: свет проходит глубже, зона общего пользования стала центром жизни, а пространство — визуально шире и гибче. Теперь здесь можно организовать кухню-остров, полноценную столовую или масштабную гостиную — без ограничений, которые задавала бы стена.
- Вместо отдельной ванной и туалета теперь два независимых гигиенических блока. Первый — полноценный, с ванной, раковиной и унитазом, что обеспечивает комфорт при ежедневных водных процедурах. Второй — компактный (с душем, унитазом и раковиной) для быстрых посещений. Такое разделение решает проблему очередей и делает быт комфортнее для семьи.
- Изменение конфигурации коридора стало не менее важным. В исходном объёме часть площади терялась в проходах, а после перепланировки эти «лишние метры» превращены в рабочий ресурс. Появилась удобная кладовая 2,8 м², а коридор стал короче и логичнее, без слепых углов и пустых зон. Такое перераспределение повышает эргономику всей квартиры: вещи хранятся компактно, комнаты «дышат», а маршруты стали интуитивными.
- Спальни получили правильную геометрию и комфортные площади, а санитарные узлы остались в зоне первоначального размещения стояков, что снижает инженерную нагрузку и сохраняет соответствие нормативам. Конструктив дома — монолитный каркас с ненесущими внутренними перегородками — позволил реализовать решения без вмешательства в несущие элементы.
- В результате — гармоничная планировка, где каждый метр работает: открытое общественное пространство, удобная приватная часть, грамотная инженерная логика и современная архитектурная подача. Квартира стала не просто функциональной, а цельной и удобной для реальной жизни.
3. Обеспечили соблюдение норм СНиП по противопожарной безопасности и требования санитарно-эпидемиологической службы.
4. Учли требования к инженерным системам в МКД:
— водоснабжение и канализация (существующие системы стояков не изменяются и не затрагиваются);
— отопление (существующая система не изменяется и не затрагивается);
— освещение от существующих окон (естественное).
5. В помещениях санузлов и кухни предусмотрена гидроизоляция плит перекрытия с заходом на стены всю высоту замачивания. Работы по устройству полов, гидроизоляции и теплоизоляции необходимо выполнять в соответствии с требованиями СП 71.13330.2017 и СП 70.13330.2012.
6. Предусмотрели акты освидетельствования скрытых работ на монтаж скрытой электропроводки, перегородок из газоблоков, а также на гидроизоляцию полов.
7. В рамках проекта предусмотрено подключение электрической плиты к выделенному застройщиком отводу кабеля в установленной точке. Все работы выполняются специалистами, имеющими необходимые допуски, с последующим предъявлением результата представителю управляющей компании и оформлением акта выполненных работ.
Технико-экономические показатели квартиры после перепланировки
- Общая площадь квартиры — 70,2 м².
- Жилая площадь квартиры — 37,6 м².
- Состав помещений после перепланировки — 3 жилые комнаты, 2 санузла, коридор, кладовая, кухня.
Нормативные документы
Перепланировка квартиры, расположенной по адресу: ул. Карла Маркса, д. 146Б/1 не нарушает права и законные интересы граждан, не создаёт угрозы их жизни и здоровью, выполняется без нарушения несущих конструкций элементов здания и не оказывает влияние на устойчивость конструкций МКД.
Проектная документация выполнена в соответствии с действующими нормами и правилами и предусматривает мероприятия, обеспечивающие пожарную безопасность эксплуатации здания, при соблюдении их заказчиком и подрядчиком.
Раздел «Объёмно-планировочные и архитектурные решения» разработан на основании требований Градостроительного кодекса Российской Федерации. Содержание раздела соответствует постановлению Правительства Российской Федерации от 16 февраля 2008 года № 87 «О составе разделов проектной документации и требованиях к их содержанию» (с изменениями на 27 мая 2022 года).
Проектные решения по обеспечению вышеперечисленных параметров приняты в соответствии с действующими нормативными документами:
- СанПиН 2.1.3684-21 «Санитарно-эпидемиологические требования к содержанию территорий городских и сельских поселений, к водным объектам, питьевой воде и питьевому водоснабжению, атмосферному воздуху, почвам, жилым помещениям, эксплуатации производственных, общественных помещений, организации и проведению санитарно-противоэпидемических (профилактических) мероприятий».
- СП 54.13330.2022 «Здания жилые многоквартирные».
- Федеральный закон № 123-ФЗ «Технический регламент о требованиях пожарной безопасности».
