Проект перепланировки и переустройство квартиры
Объект: 3-комнатная квартира, расположенная на 2 этаже 4-этажного кирпичного жилого дома 1959 года постройки по ул. Краснореченской в городе Хабаровске. Выполненные работы: подготовка архитектурно-планировочных решений, разработка проекта перепланировки квартиры.
Исходные данные
Год постройки дома — 1959 г.
Наружные стены — кирпичные.
Перегородки — деревянные.
Перекрытие — ж/б плиты.
Этаж квартиры — 2, число этажей в доме — 4.
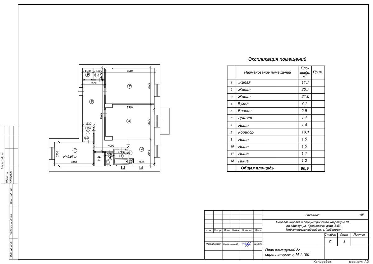
Общая площадь квартиры до перепланировки — 90,9 м².
Жилая площадь квартиры до перепланировки — 53,4 м².
Высота помещений — 2,97 м.
Состав помещений до перепланировки — 3 жилые комнаты, коридор, кухня, ванная, туалет, 5 ниш.
Что мы сделали
1. Подготовили план всех помещений квартиры и составили с собственниками эскиз новой планировки с учётом их пожеланий и технических возможностей по проведению изменений.
2. Разработали проект перепланировки и переустройства квартиры.
Проектное предложение предусматривает:
— демонтаж внутренних ненесущих деревянных перегородок;
— возведение новых перегородок из ГВЛ;
— устройство дверного проёма и установку дверного блока;
— устройство раздвижной двери;
— устройство раздвижной перегородки;
— устройство наливных полов с гидроизоляцией в помещениях санузла и кухни;
— переустройство (демонтаж существующих сантехприборов и газовой плиты, установка унитаза, ванны, душ-поддона, раковин, электрической плиты).
Преимущества архитектурно-планировочных решений:
- Общая площадь квартиры выросла с 90,9 до 93,9 м² (+3 м²), что достигнуто за счёт рационального использования пространства и демонтажа части перегородок.
- Вместо трёх отдельных жилых комнат (11,7 м², 20,7 м² и 21,0 м²) созданы более функциональные пространства 18,0 м², 16,7 м² и 21,5 м² соответственно.
- Улучшение помещений:
— Кухня объединена с жилой комнатой в большую гостиную 28,6 м².
— Санузел объединён и расширен за счёт шкафа до 9,8 м².
— Добавлен гардероб (5,0 м²) — отдельное место для хранения. - Устранение избыточных ниш. В исходном плане было 5 ниш, которые фрагментировали пространство. После перепланировки количество этих помещений сокращено, пространство стало более цельным.
- Улучшение функциональности входной зоны:
— Создана логичная просторная прихожая (12,5 м²).
— Добавлена кладовая (2,0 м²) для хозяйственных нужд.
— Организован гардероб (5,0 м²) для удобного хранения одежды. - Общее количество помещений сократилось с 12 до 10, но функциональность квартиры значительно возросла за счёт:
— Объединения мелких непрактичных зон.
— Создания специализированных помещений (гардероб, кладовая).
— Расширения ключевых зон (санузел, прихожая, кухня). - Перепланировка превратила квартиру с избыточным количеством мелких помещений и длинным коридором в современное функциональное жильё с просторными жилыми зонами, увеличенным санузлом и продуманными системами хранения.
3. Обеспечили соблюдение норм СНиП по противопожарной безопасности и требования санэпидслужбы.
4. Учли требования к инженерным системам в МКД:
— водоснабжение и канализация (существующие системы стояков не изменяются и не затрагиваются);
— отопление (существующая система не изменяется и не затрагивается);
— освещение от существующих окон (естественное).
5. В помещениях ванной, туалета и кухни предусмотрена гидроизоляция плит перекрытия с заходом на стены всю высоту замачивания. Работы по устройству полов, гидроизоляции и теплоизоляции необходимо выполнять в соответствии с требованиями СП 71.13330.2017 и СП 70.13330.2012.
6. Предусмотрели акты освидетельствования скрытых работ на монтаж перегородок из ГВЛ, гидроизоляцию полов, монтаж скрытой электропроводки и демонтаж газового оборудования.
7. Подключение электрической плиты проводится в соответствии с ТУ № 303 от 16 апреля 2024 г. от УК ООО «Авангард-Сервис».
8. Демонтаж газовой плиты, монтаж электрического кабеля и подключение электроплиты, гидроизоляция плит перекрытия и другие скрытые работы производятся силами организаций, имеющих соответствующие допуски.
Технико-экономические показатели квартиры после перепланировки
- Общая площадь квартиры — 93,9 м².
- Жилая площадь квартиры — 56,2 м².
- Состав помещений после перепланировки — 3 жилые комнаты, коридор, кладовая, прихожая, санузел, шкаф, кухня, гардероб.
Нормативные документы
Перепланировка квартиры, расположенной по адресу: ул. Краснореченская, д. 53 не нарушает права и законные интересы граждан, не создаёт угрозы их жизни и здоровью, выполняется без нарушения несущих конструкций элементов здания и не оказывает влияние на устойчивость конструкций МКД.
Проектная документация выполнена в соответствии с действующими нормами и правилами и предусматривает мероприятия, обеспечивающие пожарную безопасность эксплуатации здания, при соблюдении их заказчиком и подрядчиком.
Раздел «Объёмно-планировочные и архитектурные решения» разработан на основании требований Градостроительного кодекса Российской Федерации. Содержание раздела соответствует постановлению Правительства Российской Федерации от 16 февраля 2008 года № 87 «О составе разделов проектной документации и требованиях к их содержанию» (с изменениями на 27 мая 2022 года).
Проектные решения по обеспечению вышеперечисленных параметров приняты в соответствии с действующими нормативными документами:
- СанПиН 2.1.3684-21 «Санитарно-эпидемиологические требования к содержанию территорий городских и сельских поселений, к водным объектам, питьевой воде и питьевому водоснабжению, атмосферному воздуху, почвам, жилым помещениям, эксплуатации производственных, общественных помещений, организации и проведению санитарно-противоэпидемических (профилактических) мероприятий».
- СП 54.13330.2022 «Здания жилые многоквартирные».
- Федеральный закон № 123-ФЗ «Технический регламент о требованиях пожарной безопасности».
