Проект перепланировки и переустройство квартиры
Для однокомнатной квартиры, расположенной на первом этаже жилого дома в селе Матвеевка Хабаровского района Хабаровского края, был реализован комплекс проектных работ. В него вошли: разработка планировочных решений с образованием галереи и подготовка документации, требуемой для согласования перепланировки и переустройства жилья.
Исходные данные
Год постройки дома — 2014 г.
Наружные стены — пеноблоки.
Перекрытия — деревянные с цементной стяжкой.
Перегородки — пеноблоки, ГВЛ.
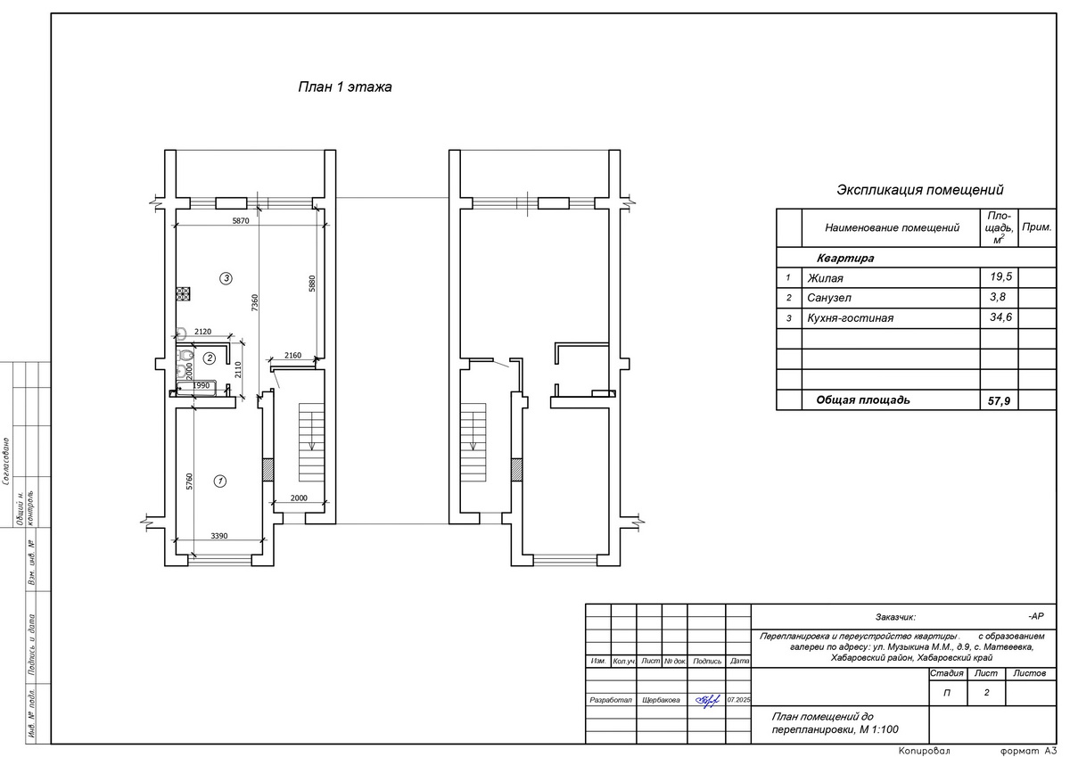
Этаж квартиры — 1, число этажей в доме — 3.
Общая площадь квартиры до перепланировки — 57,9 м².
Жилая площадь квартиры до перепланировки — 19,5 м².
Высота помещений — 2,68 м.
Состав помещений до перепланировки — 1 жилая комната, кухня-гостиная, санузел.
Что мы сделали
1. Подготовили эскиз планировки. При разработке учитывались индивидуальные пожелания собственников, существующая планировка, техническая документация застройщика и актуальные нормативные требования.
2. Разработали проект перепланировки и переустройства квартиры.
Проектное предложение предусматривает:
— возведение новых перегородок из шлакоблоков и газоблоков;
— устройство площадки со ступенями;
— устройство балкона из деревянного настила;
— устройство дверных и оконных проёмов;
— устройство наливных полов с гидроизоляцией в помещении санузла и кухни.
Преимущества архитектурно-планировочных решений:
- Образование галереи расширяет функциональные возможности квартиры и создаёт дополнительное пространство для отдыха.
- Создание отдельной жилой комнаты площадью 49,0 м² обеспечивает комфортную приватную зону.
- Появление гардеробной площадью 5,1 м² увеличивает места для хранения без потери жилой площади.
- Сохранение просторной кухни-гостиной площадью 34,6 м² обеспечивает комфортную зону для приёма гостей и семейного отдыха.
- Устройство балкона из деревянного настила создаёт дополнительную зону для отдыха на свежем воздухе.
- Общая площадь квартиры увеличена практически вдвое — с 57,9 м² до 112,0 м², что существенно повышает комфорт проживания.
3. Обеспечили соблюдение норм СНиП по противопожарной безопасности и требования санитарно-эпидемиологической службы.
4. Учли требования к инженерным системам в МКД:
— водоснабжение и канализация (существующие системы стояков не изменяются и не затрагиваются);
— отопление (существующая система не изменяется и не затрагивается);
— освещение от существующих окон (естественное).
5. В помещениях санузла и кухни предусмотрена гидроизоляция плит перекрытия с заходом на стены всю высоту замачивания. Работы по устройству полов, гидроизоляции и теплоизоляции необходимо выполнять в соответствии с требованиями СП 71.13330.2017 и СП 70.13330.2012.
6. Предусмотрели акт скрытых работ на гидроизоляцию полов. B ходе работ составление актов на скрытые работы обязательно.
Технико-экономические показатели квартиры после перепланировки
- Общая площадь квартиры — 112,0 м².
- Жилая площадь квартиры — 68,5 м².
- Состав помещений после перепланировки — 2 жилые комнаты, кухня-гостиная, санузел, гардеробная.
Нормативные документы
Перепланировка квартиры, расположенной по адресу: ул. Музыкина, д. 9, не нарушает права и законные интересы граждан, не создаёт угрозы их жизни и здоровью, выполняется без нарушения несущих конструкций элементов здания и не оказывает влияние на устойчивость конструкций МКД.
Проектная документация выполнена в соответствии с действующими нормами и правилами и предусматривает мероприятия, обеспечивающие пожарную безопасность эксплуатации здания, при соблюдении их заказчиком и подрядчиком.
Раздел «Объёмно-планировочные и архитектурные решения» разработан на основании требований Градостроительного кодекса Российской Федерации. Содержание раздела соответствует постановлению Правительства Российской Федерации от 16 февраля 2008 года № 87 «О составе разделов проектной документации и требованиях к их содержанию» (с изменениями на 27 мая 2022 года).
Проектные решения по обеспечению вышеперечисленных параметров приняты в соответствии с действующими нормативными документами:
- СанПиН 2.1.3684-21 «Санитарно-эпидемиологические требования к содержанию территорий городских и сельских поселений, к водным объектам, питьевой воде и питьевому водоснабжению, атмосферному воздуху, почвам, жилым помещениям, эксплуатации производственных, общественных помещений, организации и проведению санитарно-противоэпидемических (профилактических) мероприятий».
- СП 54.13330.2022 «Здания жилые многоквартирные».
- Федеральный закон № 123-ФЗ «Технический регламент о требованиях пожарной безопасности».
