ПЕРЕПЛАНИРОВКА.RU®
ул. Лермонтова, д. 24, оф. 9
8 (4212) 42-83-29

Кейс: перепланировка 3-комнатной квартиры ул. Орджоникидзе, 10А

2026-04-20   

Проект перепланировки квартиры

Объект: трёхкомнатная квартира, расположенная на 4 этаже 5-этажного кирпичного жилого дома в Кировском районе города Хабаровска. Выполненные работы: разработка проекта перепланировки квартиры по заданию заказчика.

Исходные данные

Год постройки дома — 1967 г.
Наружные стены — кирпичные.
Перегородки — кирпичные, деревянные.
Перекрытия — железобетонные плиты.
Этаж квартиры — 4, число этажей в доме — 5.
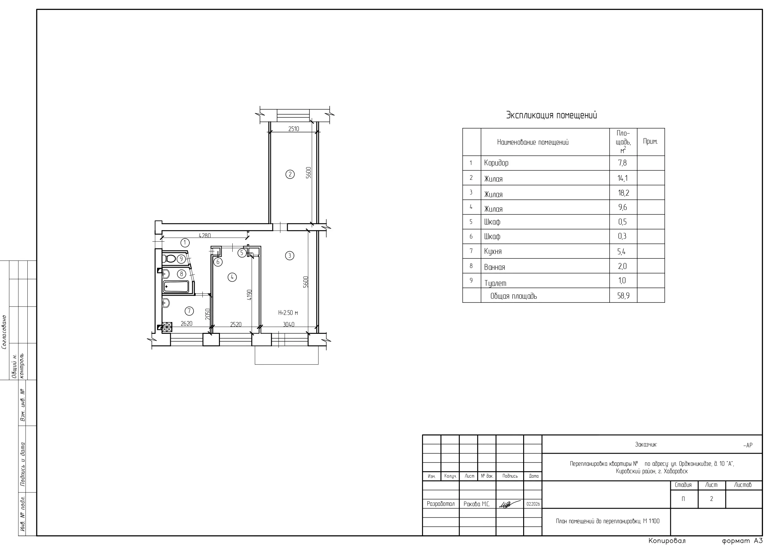
Общая площадь до перепланировки — 58,9 м².
Жилая площадь до перепланировки — 41,9 м².
Высота помещений — 2,50 м.
Состав квартиры до перепланировки: 3 жилые комнаты, коридор, кухня, ванная, туалет, 2 шкафа.

Исходный план квартиры

Что мы сделали

1. Провели анализ планировки квартиры и на его основе разработали новое планировочное решение. Оно учитывает техническое состояние конструкций, нормы действующих нормативов и пожелания заказчика.

2. Подготовили проект перепланировки квартиры.

Проектное предложение предусматривает:
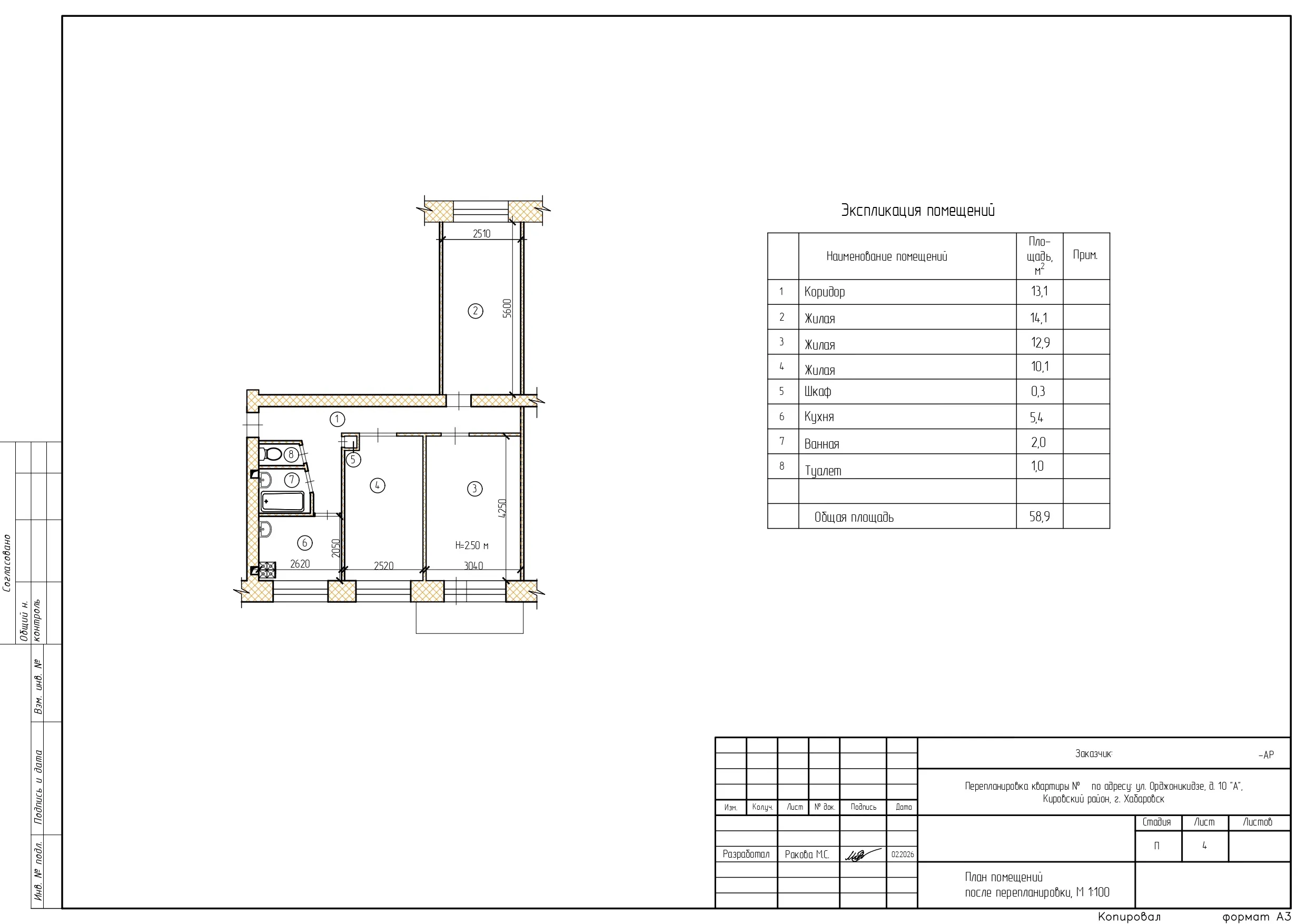
— демонтаж существующих ненесущих перегородок из дерева;
— возведение перегородок из ГВЛ;
— устройство дверного проёма и установку дверного блока.

План-схема перепланировки План помещений после перепланировки

Преимущества архитектурно-планировочных решений:

  • В жилой комнате предусмотрено устройство перегородки с коридором и установка дверного блока, что обеспечивает изолированность помещения.
  • Демонтаж встроенного шкафа площадью 0,5 м² в жилой комнате позволил увеличить полезную площадь и сформировать более свободную конфигурацию помещения.
  • Изменение конфигурации перегородок позволило перераспределить площади помещений в пределах существующего объёма квартиры.
  • Все изменения выполнены без нарушения несущих конструкций, что сохраняет устойчивость здания.

3. При проектировании соблюдены нормы СНиП по противопожарной безопасности эксплуатации объекта и требования санитарно-эпидемиологической службы.

4. Учтены требования к инженерному обеспечению здания:
— холодное и горячее водоснабжение предусмотрено от системы жилого дома, существующие стояки не изменяются и не затрагиваются;
— сточные воды от санитарных приборов отводятся в сеть канализации жилого дома, существующие стояки не изменяются и не затрагиваются;
— система отопления выполняется от существующих стояков жилого дома, существующая система не изменяется и не затрагивается;
— естественное освещение от существующих окон.

5. В помещениях туалета, ванной и кухни предусмотрена гидроизоляция плит перекрытия с заходом на стены всю высоту замачивания. Финишная отделка пола принимается по индивидуальному решению заказчика.

6. Предусмотрено оформление акта на скрытые работы: акт на монтаж перегородки из ГВЛ.

7. Работы выполняются силами лицензированной организации, имеющей допуски.

Технико-экономические показатели квартиры после перепланировки

  • Общая площадь квартиры — 58,9 м².
  • Жилая площадь квартиры — 37,1 м².

Нормативные документы

Перепланировка квартиры, расположенной по адресу: ул. Орджоникидзе, д. 10А, Кировский район, г. Хабаровск, не нарушает права и законные интересы граждан, не создаёт угрозы их жизни и здоровью, выполняется без нарушения несущих конструкций элементов здания и не оказывает влияние на устойчивость конструкций МКД.

Проектная документация выполнена в соответствии с действующими нормами и правилами и предусматривает мероприятия, обеспечивающие пожарную безопасность эксплуатации здания, при соблюдении их заказчиком и подрядчиком.

Проектные решения по обеспечению вышеперечисленных параметров приняты в соответствии с действующими нормативными документами:

  • СанПиН 2.1.3684-21 «Санитарно-эпидемиологические требования к содержанию территорий городских и сельских поселений, к водным объектам, питьевой воде и питьевому водоснабжению, атмосферному воздуху, почвам, жилым помещениям, эксплуатации производственных, общественных помещений, организации и проведению санитарно-противоэпидемических (профилактических) мероприятий».
  • СП 54.13330.2022 «Здания жилые многоквартирные».
  • Федеральный закон № 123-ФЗ «Технический регламент о требованиях пожарной безопасности».
Кисляков Альберт Анатольевич
Автор: Кисляков Альберт Анатольевич,
директор проектной компании «Алкис»

заказать проект перепланировки
Нужен проект?

Разработаем проект перепланировки для квартиры в любом городе РФ с учётом норм и местных требований согласования.

Опишите задачу и оставьте контакты, наш специалист свяжется с вами в течение рабочего дня.

чек-лист
Чек‑лист: от замысла до ЕГРН

Все шаги оформления и согласования перепланировки квартиры в чек-листе: от проверки идей и документов до обращения в Росреестр и получения выписки из ЕГРН.

Открыть