Проект перепланировки квартиры
Объект: двухкомнатная квартира (брежневка), расположенная на 1 этаже 5-этажного кирпичного жилого дома в Индустриальном районе города Хабаровска. Выполненные работы: подготовка архитектурно-планировочных решений, разработка проекта перепланировки квартиры.
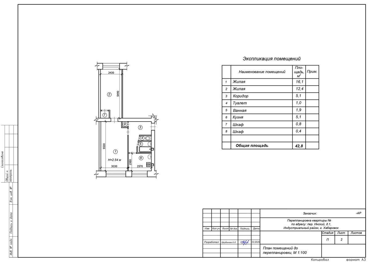
Исходные данные
Этаж — 1, число этажей — 5.
Год постройки дома — 1968 г.
Общая площадь до перепланировки — 42,8 м².
Жилая площадь до перепланировки — 28,5 м².
Высота помещений — 2,54 м.
Наружные стены — кирпичные.
Перегородки — кирпичные.
Перекрытие — железобетонные плиты.
Состав помещений до перепланировки — 2 жилые комнаты (трамвайчиком), коридор, туалет, ванная, кухня, 2 шкафа.
Задачи
- Объединение туалета и ванной.
- Расширение объединённого санузла.
- Объединение газифицированной кухни и жилой комнаты с устройством раздвижной перегородки.
- Демонтаж шкафов.
Что мы сделали
1. Подготовили план всех помещений квартиры и составили с собственником эскиз новой планировки с учётом пожеланий и технических возможностей по проведению изменений.
2. Разработали проект перепланировки квартиры.
Проектное предложение предусматривает:
— демонтаж внутренних ненесущих перегородок из кирпича;
— возведение новых перегородок из туфоблоков;
— устройство дверного проёма и установку дверного блока;
— устройство раздвижной перегородки;
— устройство наливных полов с гидроизоляцией в помещениях санузла и кухни.
Преимущества архитектурно-планировочных решений:
- Объединение санузла позволило увеличить его площадь почти вдвое (до 4,9 м²), что обеспечивает удобное размещение сантехнического оборудования и создаёт комфортные условия для использования.
- Объединение кухни и жилой комнаты формирует современную зону «кухня-гостиная», что повышает удобство ежедневного использования. Устройство раздвижной перегородки между кухней и жилой комнатой даёт возможность трансформировать пространство: открытое решение для общения и света, закрытое — для уединения.
- За счёт частичного присоединения коридора удалось оптимизировать «нерабочие» зоны и передать их в пользу санузла.
- Демонтаж встроенных шкафов устранил тесные и малоэффективные пространства, высвободив полезную площадь.
- Новое расположение перегородок и дверных проёмов обеспечивает более логичную и удобную схему передвижения внутри квартиры.
3. Обеспечили соблюдение норм СНиП по противопожарной безопасности и требования санэпидслужбы.
4. Учли требования к инженерным системам в МКД:
— водоснабжение и канализация (существующие системы стояков не изменяются и не затрагиваются);
— отопление (существующая система не изменяется и не затрагивается);
— освещение от существующих окон (естественное).
5. В помещении санузла и кухни предусмотрена гидроизоляция плит перекрытия с заходом на стены всю высоту замачивания. Работы по устройству полов, гидроизоляции и теплоизоляции необходимо выполнять в соответствии с требованиями СП 71.13330.2017 и СП 70.13330.2012.
6. Предусмотрели акты освидетельствования скрытых работ на монтаж перегородок из туфоблока, гидроизоляцию полов и монтаж скрытой электропроводки.
7. Гидроизоляция плит перекрытия и установка сантехнического оборудования производятся силами организаций, имеющих соответствующие допуски.
Технико-экономические показатели квартиры после перепланировки
- Общая площадь квартиры без балкона — 42,8 м².
- Жилая площадь квартиры — 29,7 м².
- Состав помещений после перепланировки — 2 жилые комнаты, коридор, кухня, санузел.
Нормативные документы
Перепланировка квартиры, расположенной по адресу: пер. Инский, д. 1, не нарушает права и законные интересы граждан, не создаёт угрозы их жизни и здоровью, выполняется без нарушения несущих конструкций элементов здания и не оказывает влияние на устойчивость конструкций МКД.
Проектная документация выполнена в соответствии с действующими нормами и правилами и предусматривает мероприятия, обеспечивающие пожарную безопасность эксплуатации здания, при соблюдении их заказчиком и подрядчиком.
Раздел «Объёмно-планировочные и архитектурные решения» разработан на основании требований Градостроительного кодекса Российской Федерации. Содержание раздела соответствует постановлению Правительства Российской Федерации от 16 февраля 2008 года № 87 «О составе разделов проектной документации и требованиях к их содержанию» (с изменениями на 27 мая 2022 года).
Проектные решения по обеспечению вышеперечисленных параметров приняты в соответствии с действующими нормативными документами:
- СанПиН 2.1.3684-21 «Санитарно-эпидемиологические требования к содержанию территорий городских и сельских поселений, к водным объектам, питьевой воде и питьевому водоснабжению, атмосферному воздуху, почвам, жилым помещениям, эксплуатации производственных, общественных помещений, организации и проведению санитарно-противоэпидемических (профилактических) мероприятий».
- СП 54.13330.2022 «Здания жилые многоквартирные».
- Федеральный закон № 123-ФЗ «Технический регламент о требованиях пожарной безопасности».
