ПЕРЕПЛАНИРОВКА.RU®
ул. Лермонтова, д. 24, оф. 9
8 (4212) 42-83-29

Кейс: перепланировка 2-комнатной квартиры ул. Салтыкова-Щедрина, д. 1/1А

2026-03-30   

Проект перепланировки и переустройства квартиры

Объект: двухкомнатная квартира, расположенная на 2-м этаже монолитного дома в Краснофлотском районе города Хабаровска. Задачи: оптимизировать пространство квартиры и обустроить отдельную гардеробную комнату, задействовав часть пространства коридора. Выполненные работы: подготовка архитектурно-планировочных решений, разработка проекта перепланировки и переустройства квартиры.

Исходные данные

Год постройки дома — 2025 г.
Наружные стены — монолитные железобетонные.
Перегородки — монолитные железобетонные, бетонный камень пустотелый.
Перекрытие — монолитное железобетонное.
Этаж квартиры — 2, число этажей в доме — 24/26/27.
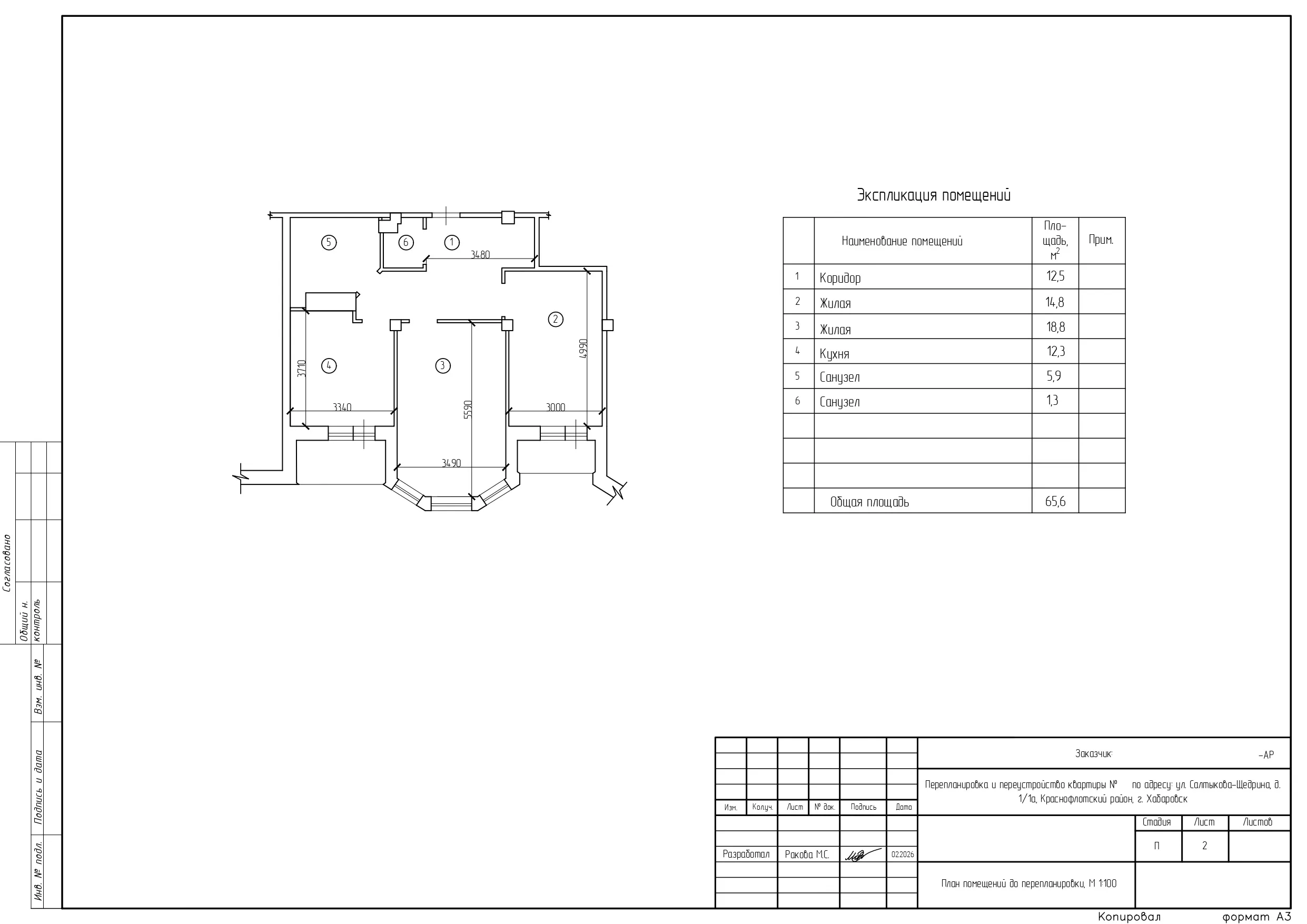
Общая площадь до перепланировки — 65,6 м².
Жилая площадь до перепланировки — 33,6 м².
Высота помещений — 2,61 м.
Состав квартиры до перепланировки: 2 жилые комнаты, коридор, кухня, 2 санузла.

Исходный план квартиры

Что мы сделали

1. Провели анализ планировки квартиры и на его основе разработали новое планировочное решение. Оно учитывает техническое состояние конструкций, нормы действующих нормативов и пожелания заказчика.

2. Разработали проект перепланировки и переустройства квартиры.

Проектное предложение предусматривает:
— демонтаж существующих ненесущих перегородок из камня пустотелого бетонного;
— возведение перегородок из ПГП;
— устройство дверного проёма и установку дверного блока;
— установку раздвижной двери;
— установку декоративных стеклянных вставок в перегородки;
— переустройство (установка раковин, ванной, унитаза и кухонной электрической плиты).

План-схема перепланировки План помещений после перепланировки

Преимущества архитектурно-планировочных решений:

  • В коридоре за счёт переноса перегородок удалось выделить отдельное помещение под шкаф площадью 1,5 м². Это позволяет убрать визуальный шум из прихожей и организовать хранение верхней одежды.
  • Появился полноценный кабинет площадью 8,7 м². Установка декоративных стеклянных вставок в перегородках позволяет естественному свету проникать в более тёмные зоны квартиры, визуально расширяя пространство.
  • На месте двух маленьких санузлов (5,9 м² и 1,3 м²) организованы просторная ванная комната (7,3 м²) и отдельный санузел (2,0 м²). В ванной теперь свободно размещаются и полноценная ванна, и раковина, и стиральная машина, при этом остаётся достаточно свободного места.
  • Площадь кухни осталась практически неизменной (около 12,5 м²), но за счёт изменения входов и конфигурации смежных стен она стала более изолированной и удобной для расстановки мебели.
  • Использование раздвижных конструкций в перегородках между комнатами (например, между кухней и кабинетом) позволяет при необходимости объединять пространство или делать его приватным, не «съедая» полезную площадь при открывании.

3. Обеспечили соблюдение норм СНиП по противопожарной безопасности и требования санитарно-эпидемиологической службы.

4. Учли требования к инженерным системам в МКД:
— водоснабжение и канализация (существующие системы стояков не изменяются и не затрагиваются);
— отопление (существующая система не изменяется и не затрагивается);
— освещение от существующих окон (естественное).

5. В помещениях санузла, ванной и кухни предусмотрена гидроизоляция плит перекрытия с заходом на стены всю высоту замачивания. Работы по устройству полов, гидроизоляции и теплоизоляции необходимо выполнять в соответствии с требованиями СП 71.13330.2017 и СП 70.13330.2012.

6. Предусмотрели акт скрытых работ на гидроизоляцию полов, монтаж электропроводки и монтаж перегородок из ПГП. B ходе работ составление актов на скрытые работы обязательно.

7. Данным проектом предусмотрено подключение электрической плиты при выполнении ряда условий:
— подключение электроплиты выполнить отдельным кабелем от РЩ до места установки;
— использовать трёхжильный медный кабель сечением 2,5 мм;
— в РЩ на вводе установить автоматический выключатель на 25 А;
— все металлические нетоковедущие части электроустановки, которые могут оказаться под напряжением зануляются путём присоединения к заземляющему проводу питающей сети в РЩ;
— электромонтажные работы проводить в соответствии с «Правилами эксплуатации электрооборудования», ПУЭ, СП 76.13330.2016;
— подключение кабеля к щиту произвести в присутствии представителя обслуживающей организации.

8. Подключение и прокладку сетей производить без штрабления монолитно-железобетонных стен и перегородок.

9. Переустройство помещений, замена оборудования, а также монтаж электрического кабеля и подключение электрической плиты должны выполняться силами лицензированных организаций, имеющих соответствующие допуски.

Технико-экономические показатели квартиры после перепланировки

  • Общая площадь квартиры — 65,6 м².
  • Жилая площадь квартиры — 24,9 м².
  • Состав помещений после перепланировки: 2 жилые комнаты, коридор, шкаф, кухня, кабинет, ванная, санузел.

Нормативные документы

Перепланировка квартиры, расположенной по адресу: ул. Салтыкова-Щедрина, д. 1/1А, не нарушает права и законные интересы граждан, не создаёт угрозы их жизни и здоровью, выполняется без нарушения несущих конструкций элементов здания и не оказывает влияние на устойчивость конструкций МКД.

Проектная документация выполнена в соответствии с действующими нормами и правилами и предусматривает мероприятия, обеспечивающие пожарную безопасность эксплуатации здания, при соблюдении их заказчиком и подрядчиком.

Раздел «Объёмно-планировочные и архитектурные решения» разработан на основании требований Градостроительного кодекса Российской Федерации. Содержание раздела соответствует постановлению Правительства Российской Федерации от 16 февраля 2008 года № 87 «О составе разделов проектной документации и требованиях к их содержанию» (с изменениями на 27 мая 2022 года).

Проектные решения по обеспечению вышеперечисленных параметров приняты в соответствии с действующими нормативными документами:

  • СанПиН 2.1.3684-21 «Санитарно-эпидемиологические требования к содержанию территорий городских и сельских поселений, к водным объектам, питьевой воде и питьевому водоснабжению, атмосферному воздуху, почвам, жилым помещениям, эксплуатации производственных, общественных помещений, организации и проведению санитарно-противоэпидемических (профилактических) мероприятий».
  • СП 54.13330.2022 «Здания жилые многоквартирные».
  • Федеральный закон № 123-ФЗ «Технический регламент о требованиях пожарной безопасности».
Кисляков Альберт Анатольевич
Автор: Кисляков Альберт Анатольевич,
директор проектной компании «Алкис»

заказать проект перепланировки
Нужен проект?

Разработаем проект перепланировки для квартиры в любом городе РФ с учётом норм и местных требований согласования.

Опишите задачу и оставьте контакты, наш специалист свяжется с вами в течение рабочего дня.

чек-лист
Чек‑лист: от замысла до ЕГРН

Все шаги оформления и согласования перепланировки квартиры в чек-листе: от проверки идей и документов до обращения в Росреестр и получения выписки из ЕГРН.

Открыть