Проект перепланировки и переустройство квартиры
Объект: трёхкомнатная квартира, расположенная на третьем этаже монолитного дома в Железнодорожном районе города Хабаровска. Выполненные работы: подготовка архитектурно-планировочных решений, разработка проекта перепланировки и переустройства квартиры.
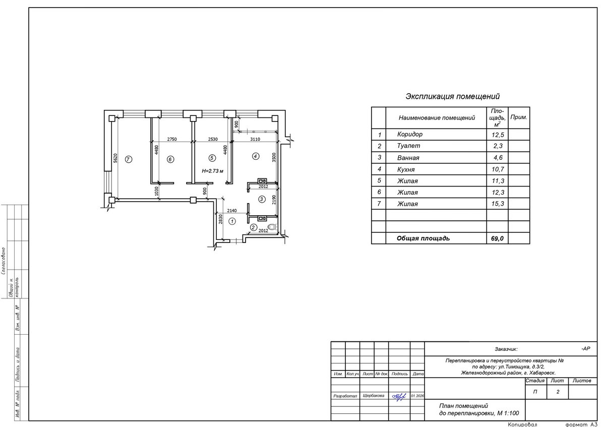
Исходные данные
Год постройки дома — 2023 г.
Наружные стены — монолитные ж/б, с наружным утеплением минераловатными плитами с облицовкой системой навесного вентилируемого фасада.
Перегородки — сборные ж/б диафрагмы, монолитные ж/б, блоки стеновые неармированные из ячеистого бетона.
Перекрытия — железобетонные монолитные.
Этаж квартиры — 3, число этажей в доме — 26.
Общая площадь до перепланировки — 69,0 м².
Жилая площадь до перепланировки — 38,9 м².
Высота помещений — 2,73 м.
Состав квартиры до перепланировки: 3 жилые комнаты, коридор, кухня, туалет, ванная.
Что мы сделали
1. Составили план всех помещений квартиры, а затем совместно с собственниками разработали эскиз новой планировки, учитывая их пожелания и технические возможности реализации изменений.
2. Разработали проект перепланировки и переустройства квартиры.
Проектное предложение предусматривает:
— демонтаж внутренних ненесущих перегородок из блоков стеновых неармированных (ячеистый бетон);
— возведение новых перегородок из газобетона;
— устройство дверного проёма и установку дверного блока;
— закладку дверного проёма;
— устройство наливных полов с гидроизоляцией в помещениях туалета, ванной и кухни;
— переустройство (установка ванной и раковины в помещении ванны, установка раковины и электрической плиты в помещении кухни).
Преимущества архитектурно-планировочных решений:
- Объединение функциональных зон формирует открытую планировку площадью 22 м², принципиально меняя восприятие жилого пространства. Вместо двух изолированных и тесных помещений образуется единая гостиная-кухня, соответствующая актуальным требованиям к комфортному жилью.
- Частичный демонтаж перегородки при высоте потолков 2,73 м обеспечивает выраженный эффект визуального расширения: пространство воспринимается более светлым и объёмным. Естественный свет от окон свободно распространяется по всей объединённой зоне, повышая уровень инсоляции.
- Новая планировочная схема позволяет совмещать приготовление пищи с общением, работой, отдыхом и присмотром за детьми, что отвечает современному сценарию использования жилья.
- Устранение дверного проёма из коридора упрощает маршруты и делает вход в кухонную зону логичным — через общее пространство гостиной. За счёт ликвидации коридорной зоны входа высвобождаются дополнительные полезные метры.
- Открытая планировка улучшает естественную циркуляцию воздуха при сохранении существующего вентиляционного канала и даёт возможность гибкого зонирования с помощью мебели и световых сценариев без возведения дополнительных перегородок.
3. Обеспечили соблюдение норм СНиП по противопожарной безопасности и требования санитарно-эпидемиологической службы.
4. Учли требования к инженерным системам в МКД:
— водоснабжение и канализация (существующие системы стояков не изменяются и не затрагиваются);
— отопление (существующая система не изменяется и не затрагивается);
— освещение от существующих окон (естественное).
5. В туалете, ванной и кухне предусмотрена гидроизоляция плит перекрытия с заходом на стены всю высоту замачивания. Работы по устройству полов, гидроизоляции и теплоизоляции необходимо выполнять в соответствии с требованиями СП 71.13330.2017 и СП 70.13330.2012.
6. Проектом предусмотрено оформление актов освидетельствования скрытых работ на монтаж скрытой электропроводки, устройство перегородок из газобетона, устройство гидроизоляции полов. Составление указанных актов в ходе производства работ является обязательным.
7. В рамках проекта планируется подключение электрической плиты с учётом выполнения технических условий:
— подключение выполнить отдельным кабелем от РЩ до места установки;
— использование трёхжильного медного кабеля сечением 6 мм²;
— в РЩ на вводе установить автоматический выключатель на 25 А;
— все металлические нетоковедущие части электроустановки, которые могут оказаться под напряжением, зануляются путём присоединения к заземляющему проводу питающей сети в РЩ;
— электромонтажные работы проводить в соответствии с «Правилами эксплуатации электрооборудования», ПУЭ, СП 76.13330.2016 и ТУ от УК (ТСЖ);
— подключение кабеля к щиту произвести в присутствии представителя обслуживающей организации.
Технико-экономические показатели квартиры после перепланировки
- Общая площадь — 69.0 м².
- Жилая площадь — 38.9 м².
- Состав квартиры после перепланировки: 3 жилые комнаты, коридор, кухня, туалет, ванная.
Нормативные документы
Перепланировка квартиры, расположенной по ул. Тимощука, д. 3/2, не нарушает права и законные интересы граждан, не создаёт угрозы их жизни и здоровью, выполняется без нарушения несущих конструкций элементов здания и не оказывает влияние на устойчивость конструкций МКД.
Проектная документация выполнена в соответствии с действующими нормами и правилами и предусматривает мероприятия, обеспечивающие пожарную безопасность эксплуатации здания, при соблюдении их заказчиком и подрядчиком.
Раздел «Объёмно-планировочные и архитектурные решения» разработан на основании требований Градостроительного кодекса Российской Федерации. Содержание раздела соответствует постановлению Правительства Российской Федерации от 16 февраля 2008 года № 87 «О составе разделов проектной документации и требованиях к их содержанию» (с изменениями на 27 мая 2022 года).
Проектные решения по обеспечению вышеперечисленных параметров приняты в соответствии с действующими нормативными документами:
- СанПиН 2.1.3684-21 «Санитарно-эпидемиологические требования к содержанию территорий городских и сельских поселений, к водным объектам, питьевой воде и питьевому водоснабжению, атмосферному воздуху, почвам, жилым помещениям, эксплуатации производственных, общественных помещений, организации и проведению санитарно-противоэпидемических (профилактических) мероприятий».
- СП 54.13330.2022 «Здания жилые многоквартирные».
- Федеральный закон № 123-ФЗ «Технический регламент о требованиях пожарной безопасности».
