Проект перепланировки и переустройство квартиры
Для трёхкомнатной квартиры, расположенной на 7‑м этаже жилого дома монолитного типа в Железнодорожном районе Хабаровска, был реализован комплекс проектных работ. В него вошли: создание эскиза, разработка планировочных решений и подготовка документации, требуемой для согласования перепланировки и переустройства жилья.
Исходные данные
Год постройки дома — 2025 г.
Наружные стены — монолитные, железобетонные.
Перекрытие — монолитное, железобетонное.
Перегородки — отсевоблоки.
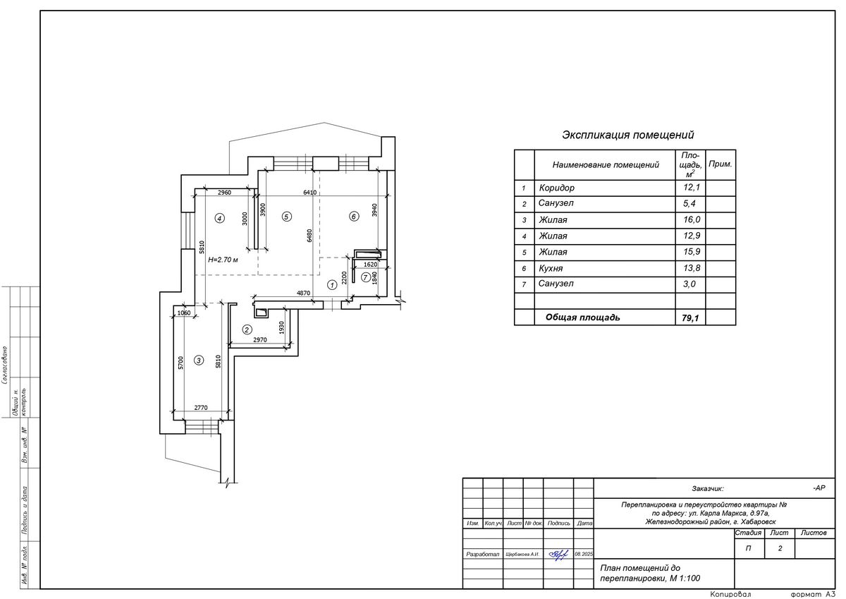
Этаж квартиры — 7, число этажей в доме — 18—22.
Общая площадь квартиры до перепланировки — 79,1 м².
Жилая площадь квартиры до перепланировки — 44,8 м².
Высота помещений — 2,70 м.
Состав помещений до перепланировки — 3 жилые комнаты, коридор, кухня, 2 санузла.
Что мы сделали
1. На этапе эскизного проектирования, осуществляемого при участии собственников жилья, мы сформировали концепцию перепланировки с учётом: планировки помещений, пожеланий владельцев, документации застройщика и актуальных технических нормативов.
2. Разработали проект перепланировки и переустройства квартиры.
Проектное предложение предусматривает:
— возведение новых перегородок из отсевоблоков;
— устройство дверных проёмов и установку дверных блоков;
— устройство наливных полов с гидроизоляцией в помещениях санузлов и кухни;
— переустройство (установка унитазов, ванны, душ-поддона, раковин и электрической плиты).
Преимущества архитектурно-планировочных решений:
- Создание двух функциональных гардеробов общей площадью 6,6 м² обеспечивает рациональное хранение вещей и эффективное использование каждого квадратного метра.
- Перераспределение площади коридоров с созданием более компактной системы перемещения улучшает эргономику перемещений по квартире и оптимизирует пространство.
- Корректировка площадей жилых комнат создаёт компактные, но функциональные помещения с улучшенными пропорциями и повышенной комфортабельностью.
- Появление гардеробов увеличивает места для хранения без потери жилой площади при сохранении общей площади квартиры 79,1 м².
- Логичное разделение функциональных зон обеспечивает возможность гибкого зонирования и адаптивность помещений под различные потребности жильцов.
- Комплексная перепланировка с учётом всех особенностей квартиры создаёт гармоничное сочетание всех элементов и соответствие современным требованиям к организации жилого пространства.
3. Обеспечили соблюдение норм СНиП по противопожарной безопасности и требования санитарно-эпидемиологической службы.
4. Учли требования к инженерным системам в МКД:
— водоснабжение и канализация (существующие системы стояков не изменяются и не затрагиваются);
— отопление (существующая система не изменяется и не затрагивается);
— освещение от существующих окон (естественное).
5. В помещениях санузлов и кухни предусмотрена гидроизоляция плит перекрытия с заходом на стены всю высоту замачивания. Работы по устройству полов, гидроизоляции и теплоизоляции необходимо выполнять в соответствии с требованиями СП 71.13330.2017 и СП 70.13330.2012.
6. Предусмотрели акты освидетельствования скрытых работ на монтаж скрытой электропроводки, перегородок из отсевоблоков, а также на гидроизоляцию полов. B ходе работ составление актов на скрытые работы обязательно.
7. Проектом предусмотрено подключение электрической плиты к выделенному застройщиком кабельному отводу в существующей точке подключения. Монтаж электрического кабеля и подключение электрической плиты выполняются специализированной организацией, имеющей необходимые допуски.
Технико-экономические показатели квартиры после перепланировки
- Общая площадь квартиры — 79,1 м².
- Жилая площадь квартиры — 37,2 м².
- Состав помещений после перепланировки — 3 жилые комнаты, 4 коридора, 2 гардероба, кухня, 2 санузла.
Нормативные документы
Перепланировка квартиры, расположенной по адресу: ул. Карла Маркса, д. 97А не нарушает права и законные интересы граждан, не создаёт угрозы их жизни и здоровью, выполняется без нарушения несущих конструкций элементов здания и не оказывает влияние на устойчивость конструкций МКД.
Проектная документация выполнена в соответствии с действующими нормами и правилами и предусматривает мероприятия, обеспечивающие пожарную безопасность эксплуатации здания, при соблюдении их заказчиком и подрядчиком.
Раздел «Объёмно-планировочные и архитектурные решения» разработан на основании требований Градостроительного кодекса Российской Федерации. Содержание раздела соответствует постановлению Правительства Российской Федерации от 16 февраля 2008 года № 87 «О составе разделов проектной документации и требованиях к их содержанию» (с изменениями на 27 мая 2022 года).
Проектные решения по обеспечению вышеперечисленных параметров приняты в соответствии с действующими нормативными документами:
- СанПиН 2.1.3684-21 «Санитарно-эпидемиологические требования к содержанию территорий городских и сельских поселений, к водным объектам, питьевой воде и питьевому водоснабжению, атмосферному воздуху, почвам, жилым помещениям, эксплуатации производственных, общественных помещений, организации и проведению санитарно-противоэпидемических (профилактических) мероприятий».
- СП 54.13330.2022 «Здания жилые многоквартирные».
- Федеральный закон № 123-ФЗ «Технический регламент о требованиях пожарной безопасности».
