Проект перепланировки и переустройства квартиры
Объект: 4-комнатная квартира (новостройка), расположенная на 8 этаже 17-этажного монолитного жилого дома в Индустриальном районе города Хабаровска. Выполненные работы: подготовка архитектурно-планировочных решений, разработка проекта перепланировки и переустройства квартиры.
Исходные данные
Этаж — 8, число этажей — 17.
Год постройки дома — 2023 г.
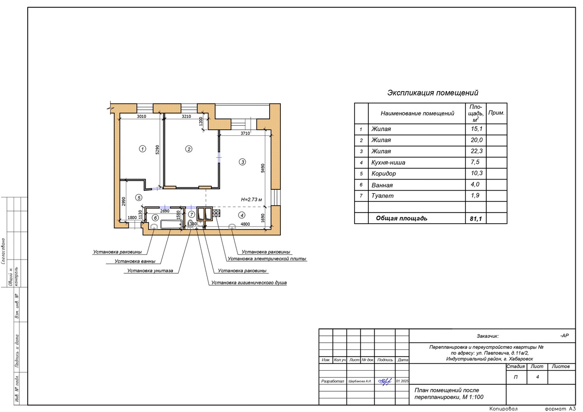
Общая площадь до перепланировки — 81,1 м².
Жилая площадь до перепланировки — 58,3 м².
Высота помещений — 2,73 м.
Наружные стены — монолитные ж/б, автоклавный газобетон.
Перегородки — автоклавный газобетон, ПГП.
Перекрытие — монолитные ж/б плиты.
Состав помещений до перепланировки — 4 жилые комнаты, коридор, кухня-ниша, ванная, туалет.
Задачи
- Объединение двух жилых комнат.
- Расширение коридора.
Что мы сделали
1. Подготовили план всех помещений квартиры и составили с собственниками эскиз новой планировки с учётом их пожеланий и технических возможностей по проведению изменений.
2. Разработали проект перепланировки и переустройства квартиры.
Проектное предложение предусматривает:
— возведение новых перегородок из отсевоблоков;
— устройство дверных проёмов и установку дверных блоков;
— устройство наливных полов с гидроизоляцией в помещениях туалета, ванной и кухни;
— переустройство (установка ванны, раковин, унитаза, гигиенического душа и электрической плиты).
Преимущества архитектурно-планировочных решений:
- Объединение двух смежных комнат площадью 12,9 и 11,7 м² позволило создать единое пространство 22,3 м². Такая площадь отвечает современным требованиям к зоне гостиной — здесь можно разместить полноценный диванный уголок, медиа-зону, библиотеку или рабочее место, не жертвуя комфортом.
- Благодаря близости кухни-ниши площадью 7,5 м² объединённое помещение органично воспринимается как центр квартиры. Появляется возможность сформировать единое общественное пространство: кухня, столовая и гостиная работают как одна функциональная зона. Это особенно удобно для приёма гостей и повседневного общения семьи.
- Изменения повышают ликвидность жилья на рынке: наличие просторной гостиной рядом с кухней воспринимается как значимое преимущество, особенно для семей с детьми или любителей открытых планировок.
3. Обеспечили соблюдение норм СНиП по противопожарной безопасности и требования санэпидслужбы.
4. Учли требования к инженерным системам в МКД:
— водоснабжение и канализация (существующие системы стояков не изменяются и не затрагиваются);
— отопление (существующая система не изменяется и не затрагивается);
— освещение от существующих окон (естественное).
5. В помещениях ванной, туалета и кухни предусмотрена гидроизоляция плит перекрытия с заходом на стены всю высоту замачивания. Работы по устройству полов, гидроизоляции и теплоизоляции необходимо выполнять в соответствии с требованиями СП 71.13330.2017 и СП 70.13330.2012.
6. Предусмотрели акты освидетельствования скрытых работ на монтаж перегородок из отсевоблоков, гидроизоляцию полов и монтаж скрытой электропроводки.
7. Гидроизоляция плит перекрытия, установка сантехнического оборудования, а также монтаж электрического кабеля и подключение электрической плиты производятся силами организаций, имеющих соответствующие допуски.
Технико-экономические показатели квартиры после перепланировки
- Общая площадь квартиры без балкона — 81,1 м².
- Жилая площадь квартиры — 57,4 м².
- Состав помещений после перепланировки — 3 жилые комнаты, коридор, кухня-ниша, ванная, туалет.
Нормативные документы
Перепланировка и переустройство квартиры, расположенной по адресу: ул. Павловича, д. 11А/2, не нарушает права и законные интересы граждан, не создаёт угрозы их жизни и здоровью, выполняется без нарушения несущих конструкций элементов здания и не оказывает влияние на устойчивость конструкций МКД.
Проектная документация выполнена в соответствии с действующими нормами и правилами и предусматривает мероприятия, обеспечивающие пожарную безопасность эксплуатации здания, при соблюдении их заказчиком и подрядчиком.
Раздел «Объёмно-планировочные и архитектурные решения» разработан на основании требований Градостроительного кодекса Российской Федерации. Содержание раздела соответствует постановлению Правительства Российской Федерации от 16 февраля 2008 года № 87 «О составе разделов проектной документации и требованиях к их содержанию» (с изменениями на 27 мая 2022 года).
Проектные решения по обеспечению вышеперечисленных параметров приняты в соответствии с действующими нормативными документами:
- СанПиН 2.1.3684-21 «Санитарно-эпидемиологические требования к содержанию территорий городских и сельских поселений, к водным объектам, питьевой воде и питьевому водоснабжению, атмосферному воздуху, почвам, жилым помещениям, эксплуатации производственных, общественных помещений, организации и проведению санитарно-противоэпидемических (профилактических) мероприятий».
- СП 54.13330.2022 «Здания жилые многоквартирные».
- Федеральный закон № 123-ФЗ «Технический регламент о требованиях пожарной безопасности».
